Ausstattung
ZENTRALE LAGE
KELLER
113 KWH/M²A
FGEE: Faktor 1,41
FGEE: Faktor 1,41
OPTIMALE GRUNDRISSGESTALTUNG
Beschreibung
Im Zentrum von Vordernberg ist diese geräumige 3-Zimmer-Wohnung frei. Die Beheizung der Wohnung erfolgt mittels einer Fernwärme-Zentralheizung. Wohnunterstützung möglich!
Räume
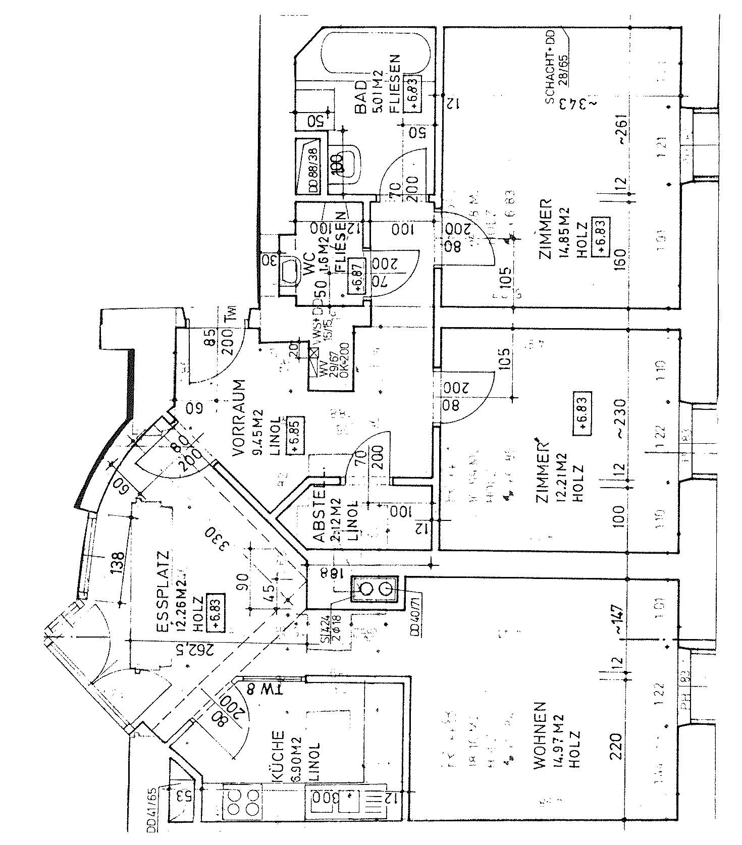
Abstellraum, Bad, Esszimmer, Kellerabteil, Kinderzimmer, Küche, Schlafzimmer, Vorraum, WC, WohnzimmerStockwerk
2. OGHeizungsart
Fernwärme ohne WarmW.Bezug möglich ab:
ab sofortLage
Viktor Zack Straße 1, 8794 Vordernberg
Wohnung Top 13
GRÖßE 81,43 m2 3 Zimmer
RECHTSFORMMietwohnung
MONATLICHES ENTGELT
Gesamt inkl. HK
€
550,68
darin enthalten:
Miete/Nutzungsentgelt:
€
339,88
Betriebskosten (exkl. HK):
€
110,08
Heizkosten:
€
100,72
Kaution
€ 1.652,04
Ausstattung
ZENTRALE LAGE
KELLER
113 KWH/M²A
FGEE: Faktor 1,41
FGEE: Faktor 1,41
OPTIMALE GRUNDRISSGESTALTUNG
Im Zentrum von Vordernberg ist diese geräumige 3-Zimmer-Wohnung frei. Die Beheizung der Wohnung erfolgt mittels einer Fernwärme-Zentralheizung. Wohnunterstützung möglich!
Räume
Abstellraum, Bad, Esszimmer, Kellerabteil, Kinderzimmer, Küche, Schlafzimmer, Vorraum, WC, WohnzimmerStockwerk
2. OGHeizungsart
Fernwärme ohne WarmW.Bezug möglich ab:
ab sofort