Ausstattung
Beschreibung
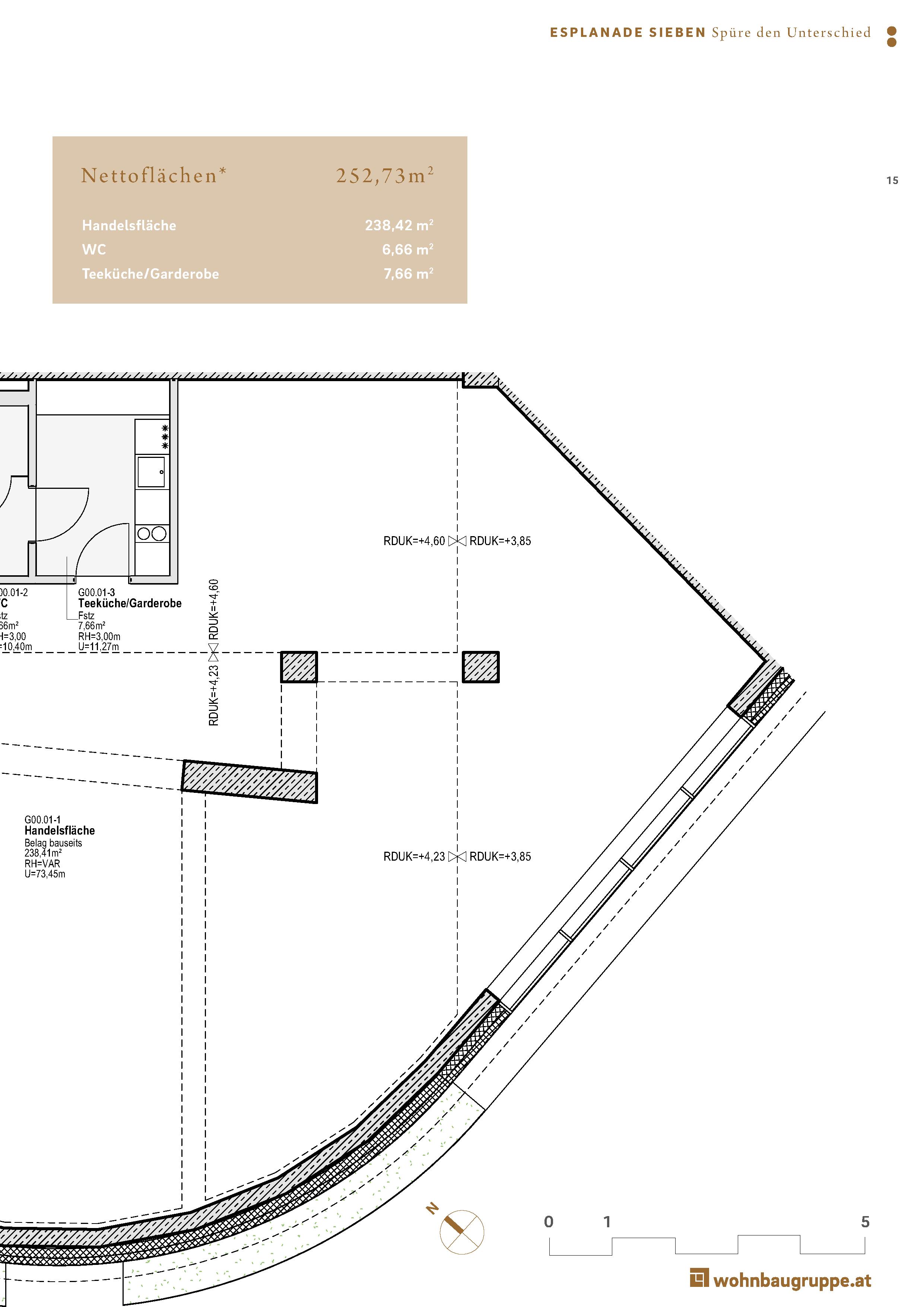
Aktuell sind im Erdgeschoss und im 1. und 2. Obergeschoss exklusive Flächen verfügbar. Die Einheiten werden im Edelrohbau übergeben und ermöglichen eine individuelle, maßgeschneiderte Gestaltung nach Ihren Anforderungen. Ideal für hochwertige Büros, Ordinationen oder Geschäftslokale mit repräsentativem Anspruch. Preis- und Detailinformationen erhalten Sie gerne auf Anfrage bei Frau Kornfeld.
Räume
Stockwerk
EGHeizungsart
Fernwärme mit WarmW.Lage
UNESCO-Esplanade 7, 8020 Graz
Geschäftsfläche Nr. 1
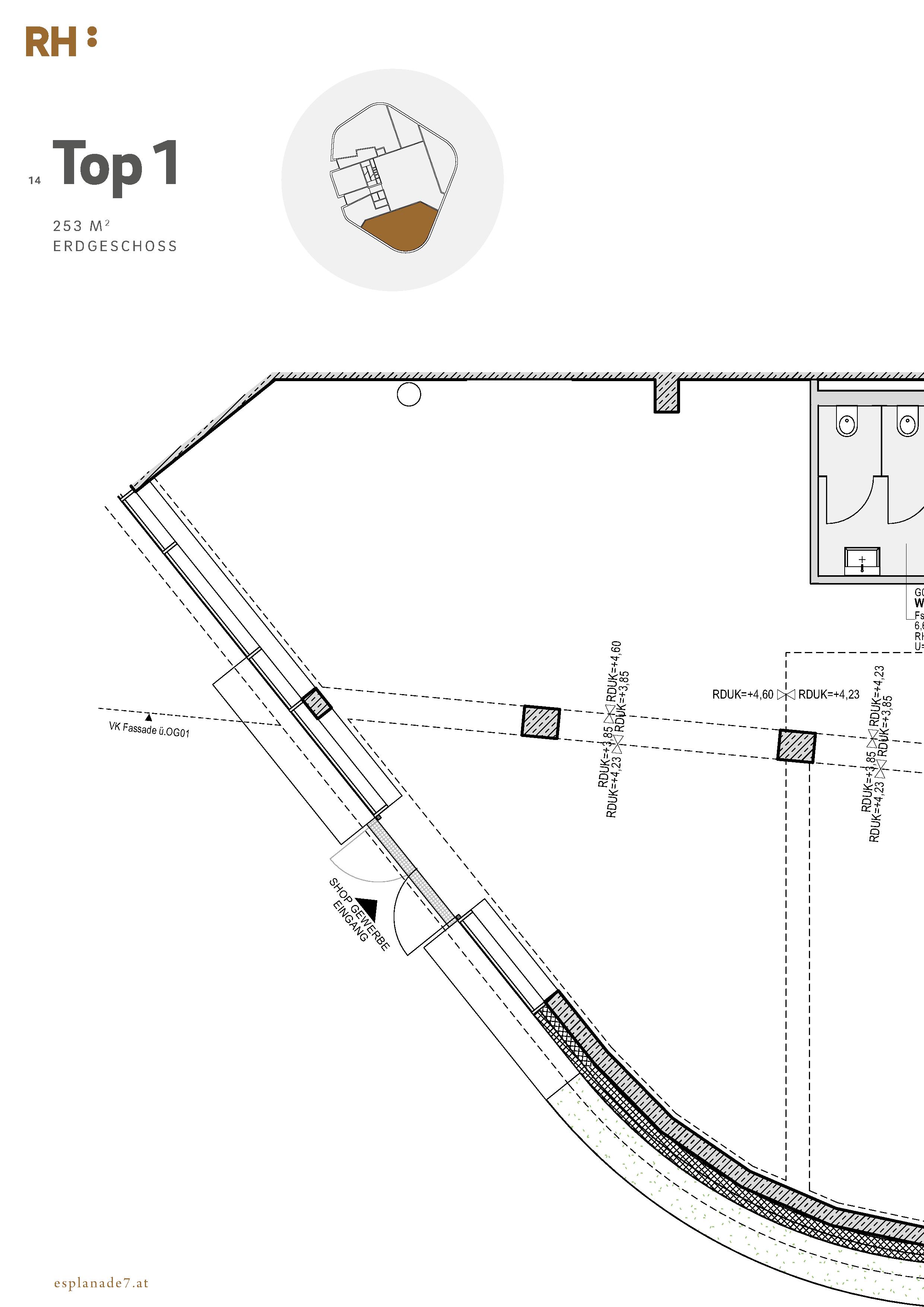
GRÖßE 252,73 m2
RECHTSFORMMietlokal
MONATLICHES ENTGELT
Gesamt inkl. HK
€
363,94
darin enthalten:
Heizkosten:
€
363,94
Ausstattung
Aktuell sind im Erdgeschoss und im 1. und 2. Obergeschoss exklusive Flächen verfügbar. Die Einheiten werden im Edelrohbau übergeben und ermöglichen eine individuelle, maßgeschneiderte Gestaltung nach Ihren Anforderungen. Ideal für hochwertige Büros, Ordinationen oder Geschäftslokale mit repräsentativem Anspruch. Preis- und Detailinformationen erhalten Sie gerne auf Anfrage bei Frau Kornfeld.
Räume
Stockwerk
EGHeizungsart
Fernwärme mit WarmW.