Ausstattung
ZENTRALE LAGE
KELLER
96,52 KWH/M²A
FGEE: Faktor 1,32
FGEE: Faktor 1,32
BALKON
OPTIMALE GRUNDRISSGESTALTUNG
Beschreibung
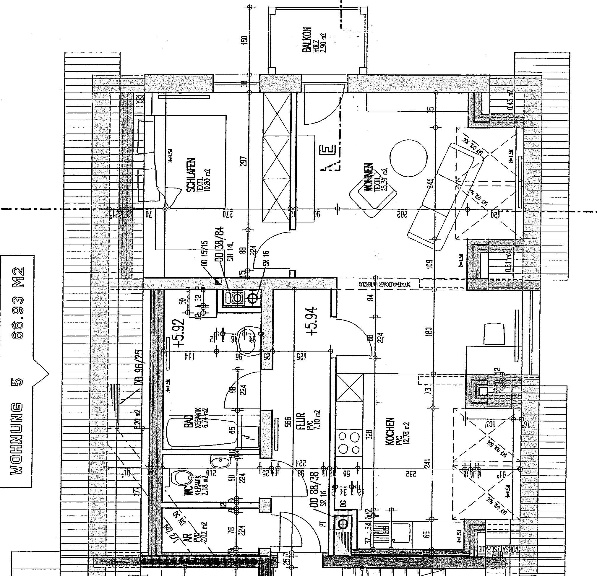
geräumige 2-Zimmer-Wohnung im Dachgeschoß. Wohnunterstützung möglich!
Räume
Abstellraum, Bad, Balkon, Flur, Kellerabteil, Küche, Schlafzimmer, WC, WohnzimmerStockwerk
DGHeizungsart
Fernwärme ohne WarmW.Bezug möglich ab:
ab sofortLage
Weißenbach an der Enns Nr. 41, 8933 St. Gallen, Steiermark
Wohnung Top 5
GRÖßE 70,55 m2 2 Zimmer
RECHTSFORMMietwohnung
MONATLICHES ENTGELT
Gesamt inkl. HK
€
716,03
darin enthalten:
Miete/Nutzungsentgelt:
€
515,32
Betriebskosten (exkl. HK):
€
116,06
Heizkosten:
€
84,65
Kaution
€ 1.453,02
Ausstattung
ZENTRALE LAGE
KELLER
96,52 KWH/M²A
FGEE: Faktor 1,32
FGEE: Faktor 1,32
BALKON
OPTIMALE GRUNDRISSGESTALTUNG
geräumige 2-Zimmer-Wohnung im Dachgeschoß. Wohnunterstützung möglich!
Räume
Abstellraum, Bad, Balkon, Flur, Kellerabteil, Küche, Schlafzimmer, WC, WohnzimmerStockwerk
DGHeizungsart
Fernwärme ohne WarmW.Bezug möglich ab:
ab sofort