Ausstattung
FGEE: Faktor 1,37
Beschreibung
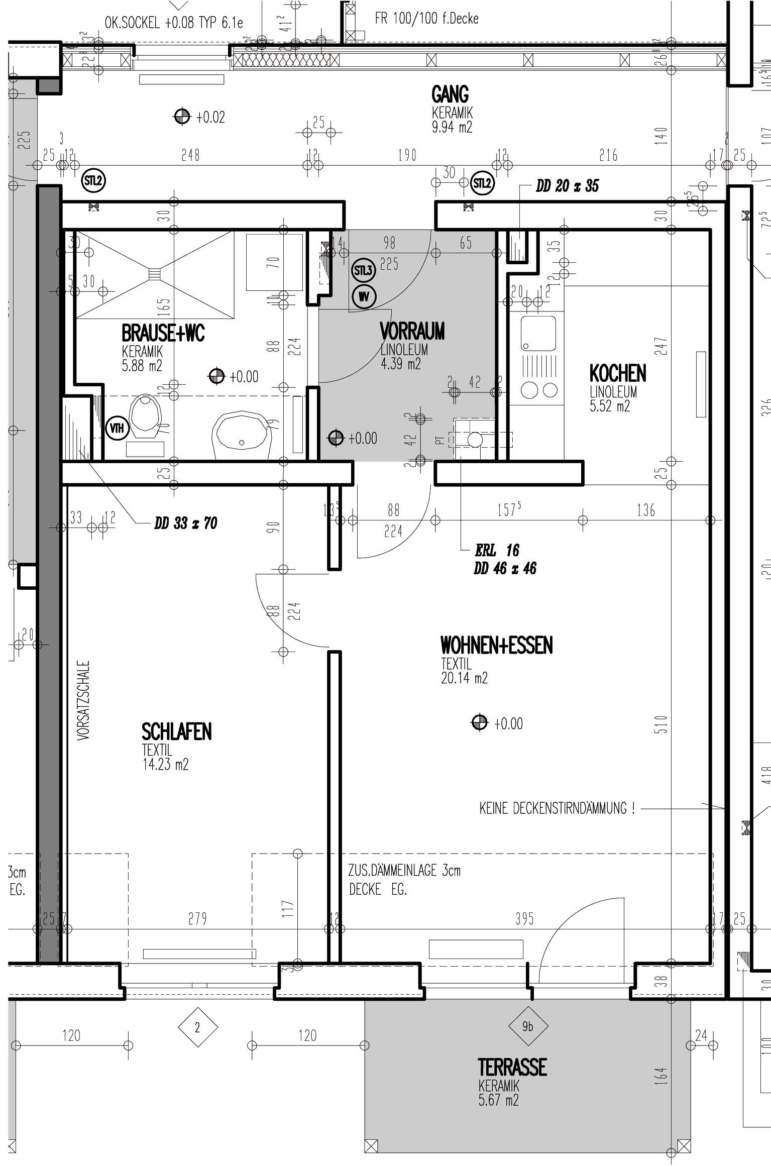
Hier wird eine gräumige 2-Zimmer-Wohnung mit Terrasse frei. Wohnunterstützung möglich!Bei der angegebenen Miete wurde ein monatlicher Zuschuss in der Höhe von € 100,00 abgezogen. Ein neues Zuhause einzurichten ist auch mit finanziellem Aufwand verbunden. Die Siedlungsgenossenschaft ENNSTAL unterstützt Sie beim Start und fördert diese Wohnung – bei einem Kündigungsverzicht von 24 Monaten - im ersten Jahr mit einem nicht rückzahlbaren monatlichen Zuschuss!
Räume
Bad/WC, Kellerabteil, Küche, Schlafzimmer, Terrasse, Vorraum, Wohn/EsszimmerStockwerk
EGHeizungsart
Ölheizung ohne WarmW.Bezug möglich ab:
ab sofortLage
Oberer Markt 224, 8933 St. Gallen, Steiermark
Wohnung Top 2
GRÖßE 50,17 m2 2 Zimmer
RECHTSFORMMietwohnung
MONATLICHES ENTGELT
Gesamt inkl. HK
€
608,61
darin enthalten:
Miete/Nutzungsentgelt:
€
423,99
Betriebskosten (exkl. HK):
€
195,72
Startzuschuss:
€
- 100,00
Heizkosten:
€
88,90
Kaution
€ 2.098,14
Ausstattung
FGEE: Faktor 1,37
Hier wird eine gräumige 2-Zimmer-Wohnung mit Terrasse frei. Wohnunterstützung möglich!Bei der angegebenen Miete wurde ein monatlicher Zuschuss in der Höhe von € 100,00 abgezogen. Ein neues Zuhause einzurichten ist auch mit finanziellem Aufwand verbunden. Die Siedlungsgenossenschaft ENNSTAL unterstützt Sie beim Start und fördert diese Wohnung – bei einem Kündigungsverzicht von 24 Monaten - im ersten Jahr mit einem nicht rückzahlbaren monatlichen Zuschuss!
Räume
Bad/WC, Kellerabteil, Küche, Schlafzimmer, Terrasse, Vorraum, Wohn/EsszimmerStockwerk
EGHeizungsart
Ölheizung ohne WarmW.Bezug möglich ab:
ab sofort