Zum Inhalt springen
ZUR ÜBERSICHT

Schilcherlandsieldung 23, 8511 St. Stefan ob Stainz

Wohnung Top 26

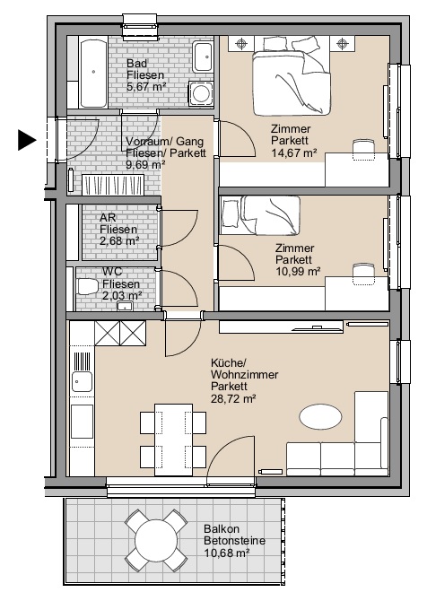
GRÖßE 75,18 m2 3 Zimmer

RECHTSFORMMiete m. Kaufoption

MONATLICHES ENTGELT

Gesamt inkl. HK

€ 908,12

Miete/Nutzungsentgelt:

€553,02

Betriebskosten (exkl. HK):

€ 131,03

Heizkosten:

€ 108,26

Kosten für KFZ-Abstellplatz:

€ 115,81

Anzahlung

14.629,00

Beispiel für eine Teilzahlungsvariante

1/3 der Anzahlung zahlbar vor Bezug zuzüglich. Anzahlung PKW-Abstellplatz

2/3 der Anzahlung zahlbar in bis zu 7 jährlichen Raten (zuzüglich. Zinsen - dzt. 3,5 % p.a. - berechnet vom aushaftenden Betrag)


Vor Bezug € 4.428,00 + € 1.346,00 (PKW)

Jährliche Rate € 1.265,00 zzgl. 3.5 % Zinsen p.a.



Informationen über weitere mögliche Zahlungsvarianten erhalten Sie gerne bei einem persönlichen Beratungsgespräch.

Ausstattung

TIEFGARAGE
ZENTRALE LAGE
KELLER
Sonnige Lage
BALKON
OPTIMALE GRUNDRISSGESTALTUNG

Beschreibung

Die Siedlungsgenossenschaft ENNSTAL errichtet in St. Stefan ob Stainz ein Wohnbauprojekt mit insgesamt 32 vom Land Steiermark geförderten Wohnungen in der Rechtsform "Miete mit Kaufoption". Die Wohnungen zeichnen sich durch ihre optimale Raumaufteilung und ökologische Bauweise aus. Die Beheizung erfolgt über Fernwärme mit Biomasse und sorgt somit für ein nachhaltiges Wohnen. Jeder Wohnung ist ein PKW-Abstellplatz in der Tiefgarage zugeordnet. Zusätzlich stehen Besucherparkplätze im Freien zur Verfügung.

Räume

Abstellraum, Bad, Balkon, Gang, Kellerabteil, Kinderzimmer, Schlafzimmer, Tiefgaragenabstellplatz, Vorraum, WC, Wohnen/Essen/Küche

Stockwerk

1. OG

Bezug möglich ab:

09/2026

Lage

Download

Exposé GRUNDRISS

Schilcherlandsieldung 23, 8511 St. Stefan ob Stainz

Wohnung Top 26

GRÖßE 75,18 m2 3 Zimmer

RECHTSFORMMiete mit Kaufoption

Anzahlung

14.629,00
Teilzahlung möglich

Beispiel für eine Teilzahlungsvariante

1/3 der Anzahlung zahlbar vor Bezug zuzüglich. Anzahlung PKW-Abstellplatz

2/3 der Anzahlung zahlbar in bis zu 7 jährlichen Raten (zuzüglich. Zinsen - dzt. 3,5 % p.a. - berechnet vom aushaftenden Betrag)


Vor Bezug € 4.428,00 + € 1.346,00 (PKW)

Jährliche Rate € 1.265,00 zzgl. 3.5 % Zinsen p.a.



Informationen über weitere mögliche Zahlungsvarianten erhalten Sie gerne bei einem persönlichen Beratungsgespräch.

MONATLICHES ENTGELT

Gesamt inkl. HK

908,12

darin enthalten:

Miete/Nutzungsentgelt:

553,02

Betriebskosten (exkl. HK):

131,03

Heizkosten:

108,26

Kosten für KFZ-Abstellplatz:

115,81

Ausstattung

TIEFGARAGE
ZENTRALE LAGE
KELLER
Sonnige Lage
BALKON
OPTIMALE GRUNDRISSGESTALTUNG

Die Siedlungsgenossenschaft ENNSTAL errichtet in St. Stefan ob Stainz ein Wohnbauprojekt mit insgesamt 32 vom Land Steiermark geförderten Wohnungen in der Rechtsform "Miete mit Kaufoption". Die Wohnungen zeichnen sich durch ihre optimale Raumaufteilung und ökologische Bauweise aus. Die Beheizung erfolgt über Fernwärme mit Biomasse und sorgt somit für ein nachhaltiges Wohnen. Jeder Wohnung ist ein PKW-Abstellplatz in der Tiefgarage zugeordnet. Zusätzlich stehen Besucherparkplätze im Freien zur Verfügung.

Räume

Abstellraum, Bad, Balkon, Gang, Kellerabteil, Kinderzimmer, Schlafzimmer, Tiefgaragenabstellplatz, Vorraum, WC, Wohnen/Essen/Küche

Stockwerk

1. OG

Bezug möglich ab:

09/2026

Download

Exposé Merkliste GRUNDRISS

Kontaktanfrage

;